쪽지실명인증
이메일인증
합의된 가격으로재능 구매하기
재능거래 실시간 만족후기
heedoo19**
pdf 파일 아래처럼 ai파일도 부탁드릴게요 ㅠㅠㅠㅠㅠㅠㅠㅠㅠㅠ
hja85**
약속한 시간보다 빨리 첨삭해 주셨고, 첨삭된 내용이 만족스럽습니다. 처음 첨삭을 받아보았는데 첨삭...

y795**
원하는데로 딱 나왔네요! 감사합니다 수고하세요~
june16**
오래 기다렸지만 그만큼 도움이 되는 사주풀이였습니다 감사합니다!
thzza**
몇 차례 수정 요청했는데 빨리 빨리 피드백 주시네요. 감사합니다~!
관련 추천재능
광고신청
100
### 바로 구매하지 마시고 판매자 쪽지 문의 기능으로 작업일정, 가격 등을 협의해주세요 ###
### 바로 구매하지 마시고 판매자 쪽지 문의 기능으로 작업일정, 가격 등을 협의해주세요 ###
안녕하세요. 건축설계 실무 5년이상의 경력으로 건축/인테리어 관련 작업물 프리랜서입니다.
실무에 현직종사중으로 실무에 맞춰 작업가능합니다.
디자인관련 프리랜서도 겸업으로 5년이상 하고있습니다.
언제든지 편하게 문의주세요!
1. 철저한 시간 준수로 일정을 맞춰드립니다. (밤을 새서라도 해드려요!)
2. 사용 용도에 맞추어 작업방향 선정 먼저 해드립니다.
3. 본작업전 시안을 미리 보내어 최대한 필요한 방향으로 맞춥니다.
4. 금액은 협의후 결제부탁드립니다.
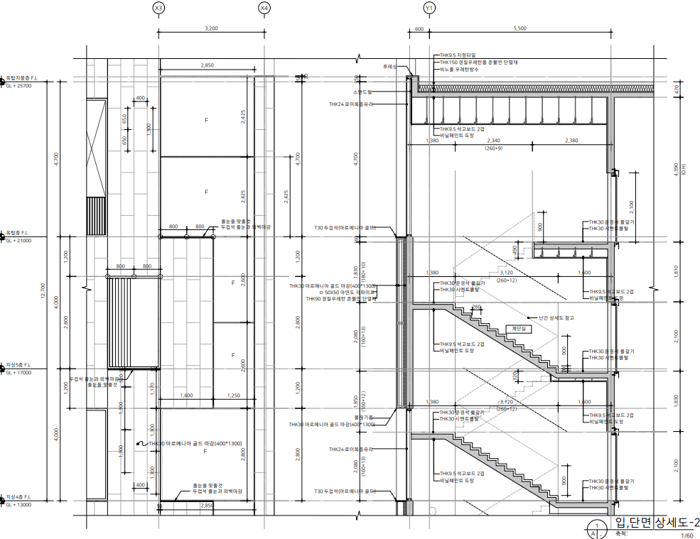
2D 단순도면 (샵도면 캐드화/실측치수 도면화/공간 가구배치/기본계획도면/디자인도면)
10py 이하 - 30,000 ~
10py 이상 - 45,000 ~
2D 실무용도면 (인허가/실시/디테일)
10py 이하 - 60,000~
10py 이하 - 75,000~
3D 모델링 (스케치업/라이노/루미온/브이레이)
* 작업특성상 작업완료후 환불이 어렵습니다.
* 최종작업후 3회 무료수정 가능합니다. (재작업은 별도비용 추가)
단순 모델링
10py 이하 - 45,000~
10py 이상 - 55,000~
보고서용 투시도, 렌더링 장당 60,000~
아이소메트릭 4장 150,000~
보고서용 삽도/공모전용 판넬/졸업작품까지 다양하게 작업합니다.
편하게 문의주세요!




구매 전 판매자
주문 후 1:1 거래창에서
의뢰된 작업이 완료되면
배송된 작업에 구매자가